毫无疑问,室内将是「卷」住宅产品力的下一个制胜领域。
因为外立面、大门、大堂、景观、会所、车库等等几乎全部「卷」完了,都已经做得非常好了,但是室内还做得不够好。所以,谁占领了室内空间的创新,谁就是下一个占领楼市话语权的房企。
今天,我们来看一下海州的天奕,看看开发商如何打开住宅产品力迭代的新脑洞。
通透的玻璃盒子:约70%的窗墙比
因为用了大量的大幅玻璃,所以它们拥有极高的窗墙比。建筑做得特别薄,约231㎡户型的南向面宽达到了约17.2米,约281㎡户型的南向面宽更是高达19米。这种「大面宽」的设计,带来了特别好的采光。

效果图
而且,天奕以外立面的高颜值见长,南北立面同样考究(很多房企往往有意无意忽略了北立面的颜值)。天奕的特别之处在于全封闭阳台处理,这样就避免了事后包阳台的凌乱。
华灯初上时,像是悬浮在空中的「月光宝盒」。为业主创造了更美的风景,也为市民带来了更高品质的公共场景。
珍贵的「全景舱」:豪宅的一个标识
全景舱流行于一二线豪宅圈,概念源于对传统户型的升级——
在不增加南向面宽的条件下,客厅或卧室三面开窗,通过移除转角结构柱、采用圆弧形落地窗,实现无断点连续视野,形成“驾驶舱式”环幕效果。

效果图
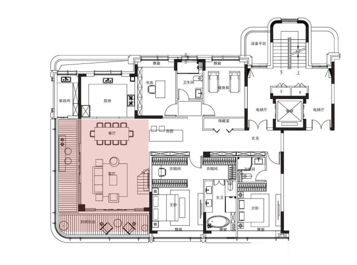
下面,是项目约231㎡四房两厅的平层标准层户型图。为了方便大家理解何为「全景舱」,我特意用红底标注——
这个全景舱,是客厅+餐厅+阳台组成的「270°环幕」。

户型图
和单面采光不同的是,这个超级大厅有两面全落地玻璃,并且在拐角处做了圆弧形,从而营造出如飞机驾驶室一样约270°沉浸式环幕视野。
此外,还创新引进了「800库」储藏间,位于玄关旁,这是非常好用的收纳空间,行李箱、儿童车、鱼竿、登山包等顺手拿的物件,随手就放进这里。
超6米挑高:把客厅又放大了一倍
敞亮已经是高端住宅的硬需求。天奕层高是约3.2-3.3米,这带来的是立方感受上的敞亮。
叠墅客厅挑高约6.6米,平层部分户型客厅挑高约6.4米,等于是把一体化设计的客餐厅又放大了一倍。

示意图
更重要的是,客厅又是「全景舱」。这种设计将光、景与生活无缝衔接,形成「立体化」观景视窗。
L型纵向阳台:稀缺的「家庭活动中心」
天奕的户型是建面约233㎡起步,几乎都是东西两户。
他们把建筑面积约351㎡顶复户型的电梯厅,设计成了私属领地。宽敞的「客餐厨LDK一体化设计」的大横厅,比别处更动人,因为它还拥有「L型阳台」。L型阳台的浓烈场景感,不是传统横向阳台所能比拟的——
它不再是客厅或者卧室的附庸,而是成为一家人的活动中心。

户型图
我们现在去看很多户型面积两三百平米的豪宅,本质上跟150平米的户型没区别,很多两三百平米的豪宅就是把150平米户型给等比拉大了,你获得的只是更大尺度的客厅(经常是大得离谱),更大尺度的卧室、餐厅与厨房而已,场景浓度并没有提升。
一宅三院:南北+上下双庭院
通过巧妙设计,天奕的叠墅实现了独门入户,有天有地的生活。下叠最大能享受180方的庭院,上叠的露台最大也做到了180多方。

户型图
建面约278㎡的下叠,三开间朝南,单层开间足足有11.6米。更惊喜的是,除了南北双院,下叠还创新设计了下沉式庭院——

效果图
下叠拥有入户庭院和下沉庭院,采用「双首层」设计。-1层既有通透的采光空间,让原本封闭的地下空间也拥有天光与自然。又有层高超5.6米的开阔尺度,与首层几乎无异。
简单说,今年连云港好房子很多,但主要是「守正」意义上的创新,讲究端庄典雅;而天奕不仅要「守正」,还要「出奇」,不仅讲究端庄典雅,还要讲究活力四射。
这样的天奕,对于整个连云港楼市来说,是一场良性的触动。
